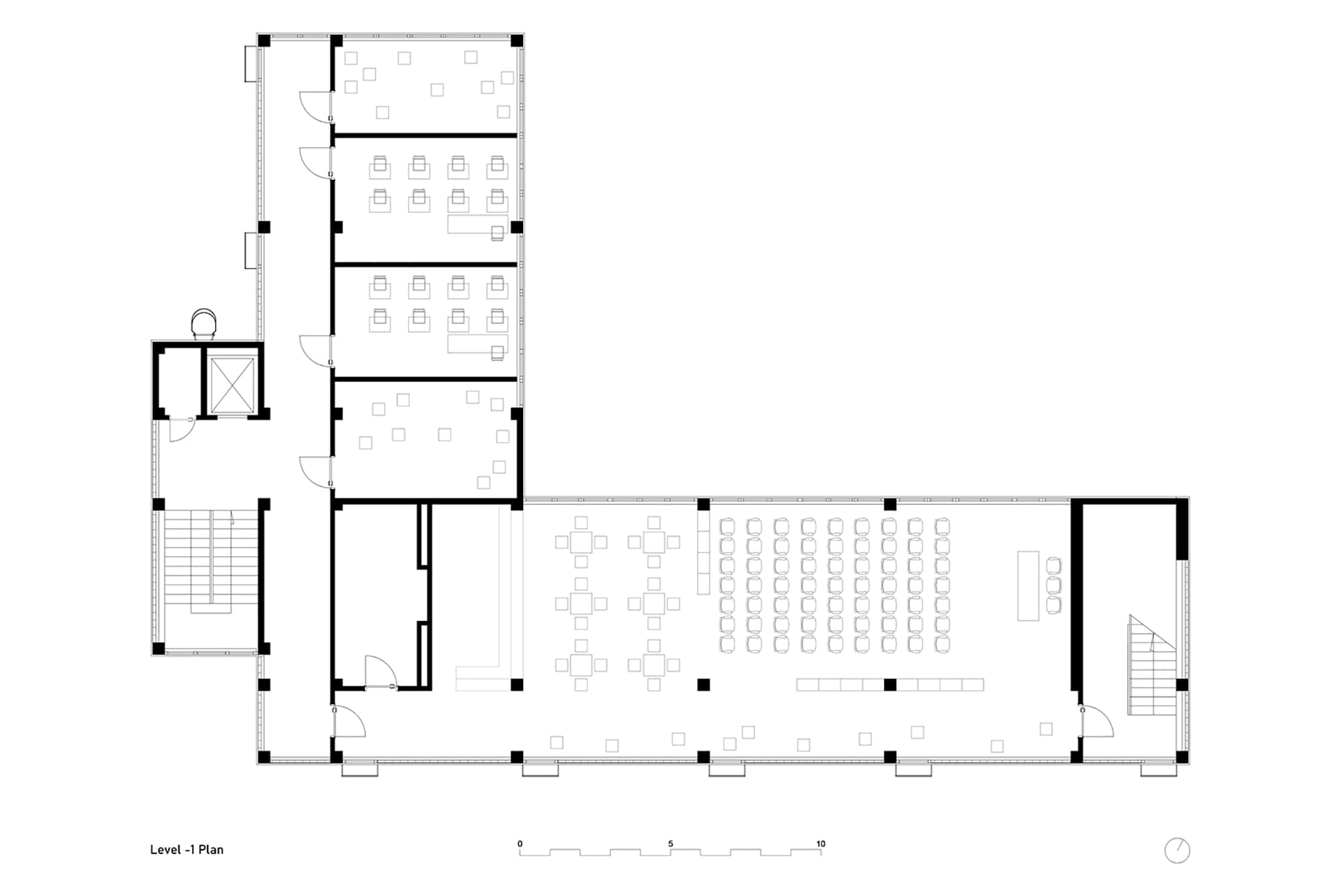
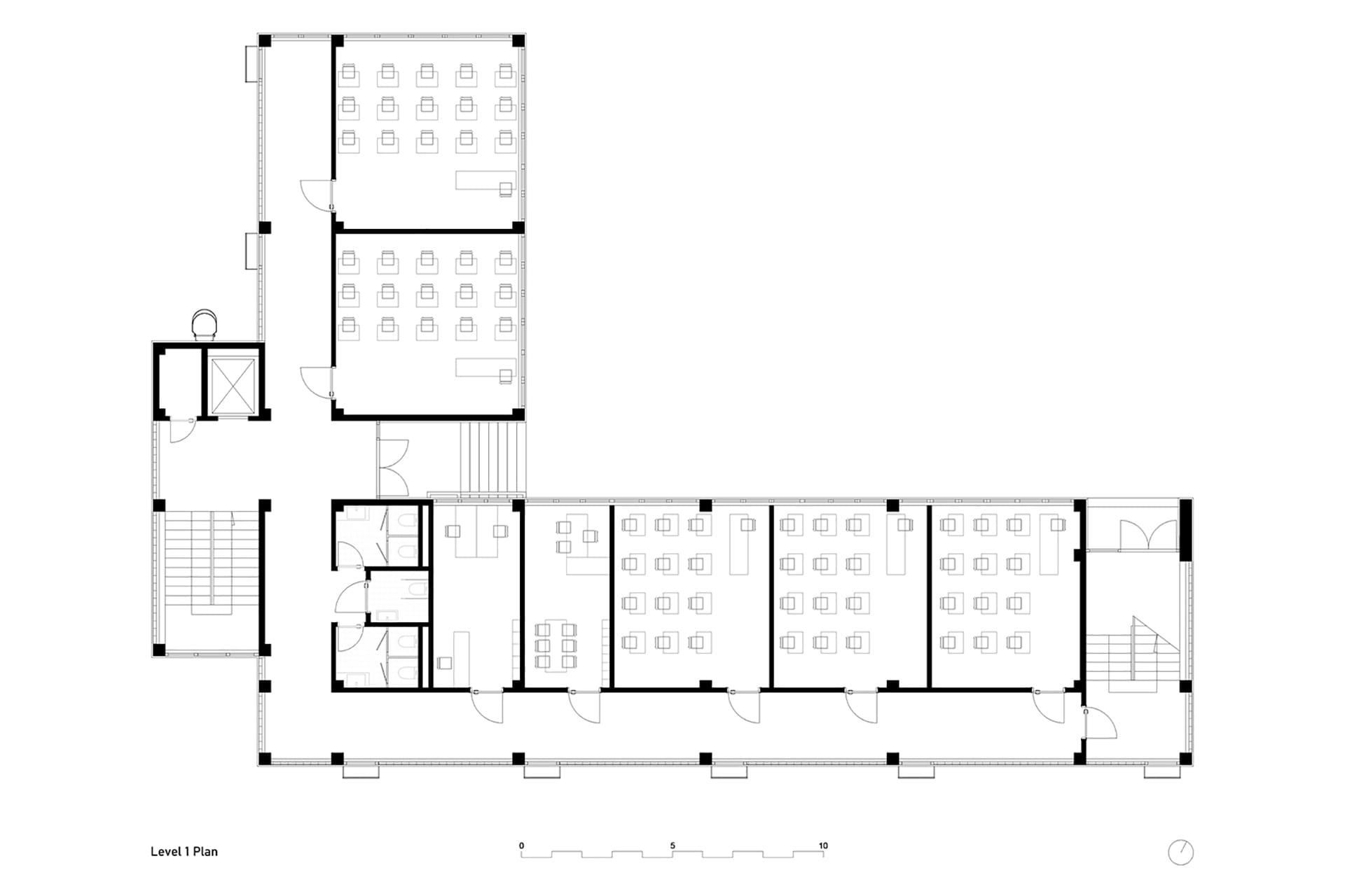
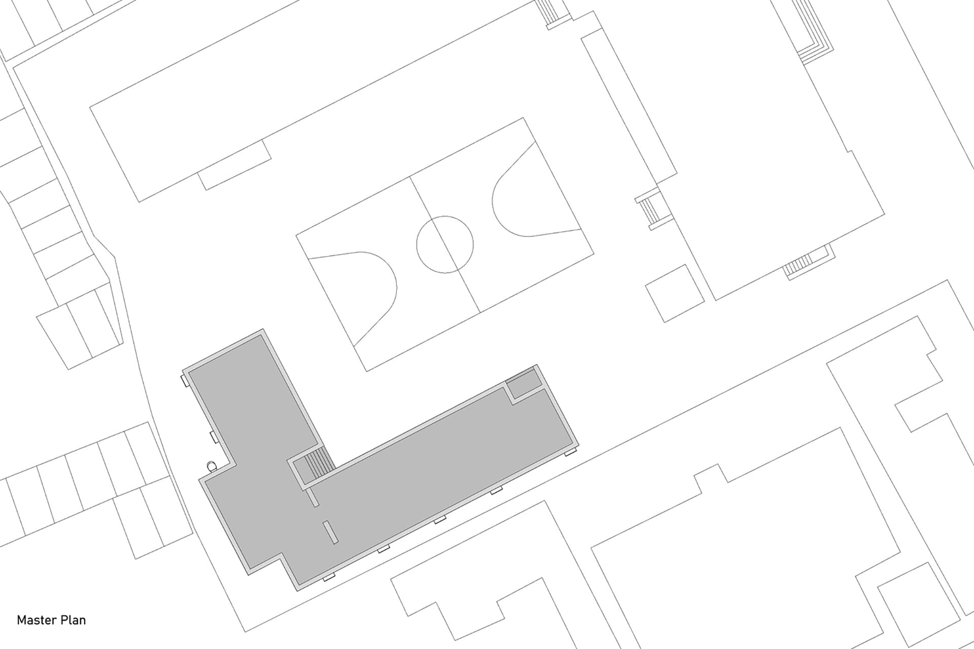
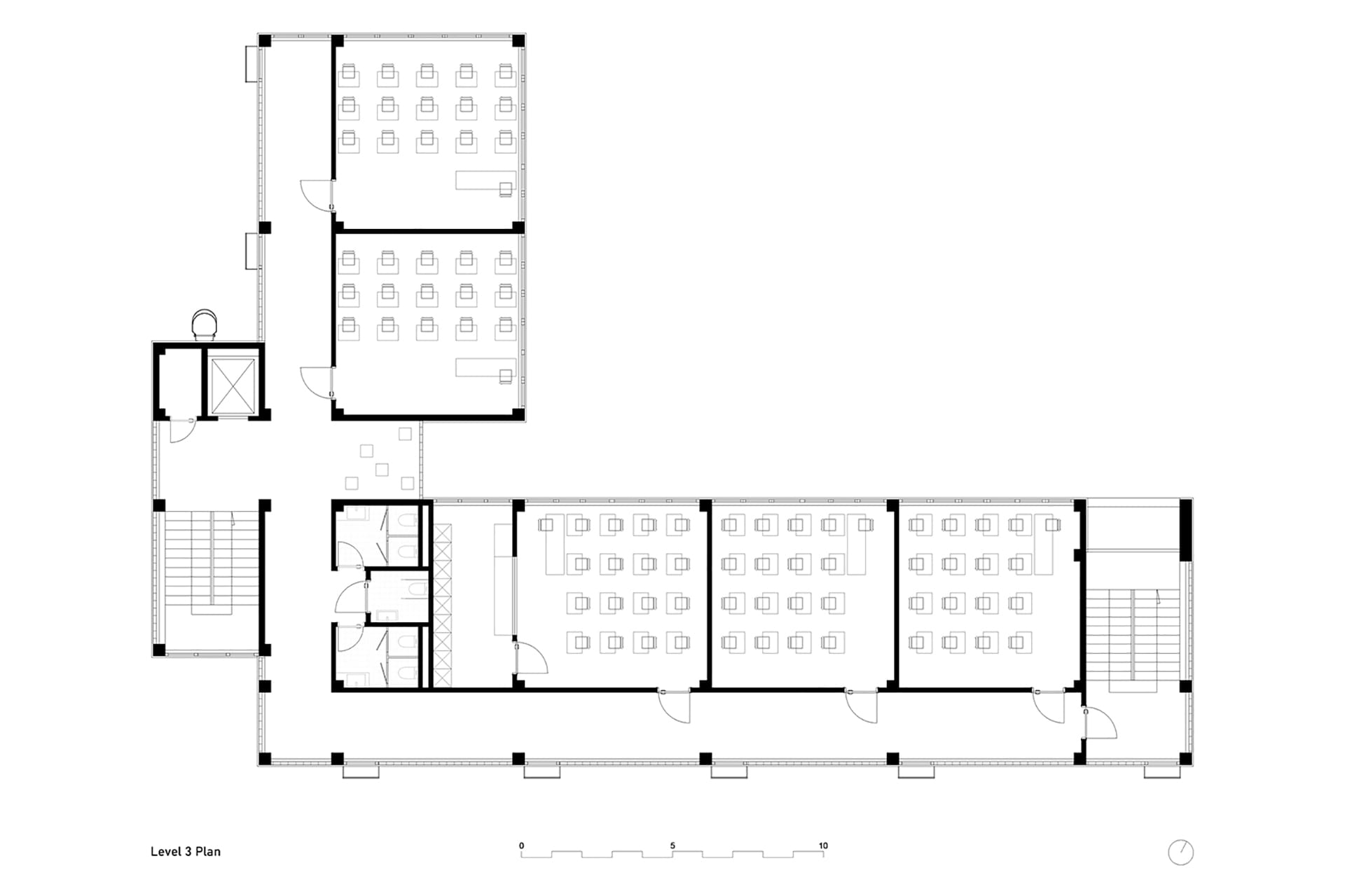
IB-Mthiebi High School

Project Info
Status

Built

Project Year

2016-2017

Location

20 Kutaisi Street, Tbilisi, Georgia

Client

IB-Mthiebi Boarding School

Size

1798.8 m2

Team

Tornike Dadiani

Consultants

A. Kortava, N.Tchkoidze